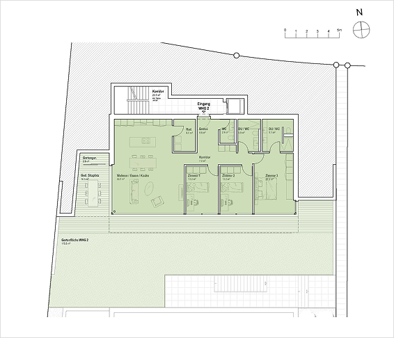
- Grosser privater Garten mit idealer Besonnung
- Komplett verglaste Fassaden mit direktem Gartenzugang
- Moderne Küche mit viel Stauraum + praktisches Reduit
- Seitlich gelegener, überdachter Sitzplatz als Wohnraumerweiterung
- Helle, grosszügige Privaträume, eines mit Bad en Suite


