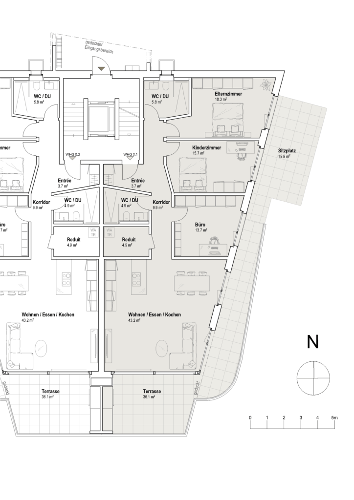
- Helles Entrée mit Garderobe
- Offener Wohn- und Essbereich mit moderner Küche
- Breite Fensterfronten zur gedeckten Südterrasse & seitlichem Garten (Ostlage)
- Drei Schlaf- oder Arbeitszimmer mit Blick ins Grüne
- Zwei vollwertige Nasszellen + praktisches Reduit mit Waschturm


